Beschrijving
Ben je op zoek naar jouw eerste koopwoning? Of ben je juist toe aan een stapje groter voor je jonge gezin? Kijk dan niet verder! Welkom aan de Fivelingolaan 14, een verrassend ruime en gezellige gezinswoning waar je bijna direct in kunt trekken.
Het eerste wat je opvalt als je bij deze woning aankomt, is de royale inrit. Je zet hier moeiteloos twee auto’s (of meer!) kwijt! Direct grenzend aan de oprit vind je de stenen garage. Wat een uitkomst voor de hobbyist, klusser of gewoon als je houdt van een beetje extra opbergruimte.
Binnen is het huis allesbehalve oubollig. De begane grond straalt frisheid en comfort uit. De woonkamer heeft lekker veel natuurlijk lichtinval door de grote ramen. De moderne keuken is voorzien van alle nodige inbouwapparatuur en een Ouooker!
Ook het sanitair is dik in orde en helemaal van deze tijd. Wasbakjes, kranen, het toilet – alles netjes en modern afgewerkt, zodat je niet meteen hoeft te verbouwen.
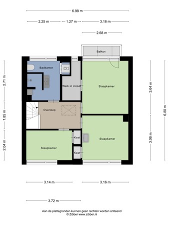
Boven vind je drie slaapkamers en heb je altijd al een walk-in closet willen hebben? Goed nieuws: deze woning heeft gewoon een grote inloopkast!!
Met een perceel van 281 vierkante meter heb je hier meer dan genoeg ruimte buitenom. De tuin is goed onderhouden en biedt volop privacy.
Dit huis is helemaal klaar voor groene toekomst. Door de volledige isolatie en maar liefst 11 zonnepanelen op het dak. Dat ga je zeker niet alleen voelen in het binnenklimaat, maar zeker ook in je portemonnee! Nieuw Energielabel zal binnenkort beschikbaar zijn!
En dan de locatie: je woont hier letterlijk in hartje Stadskanaal. Supermarkten, winkels, scholen, speeltuinen, gezellige horeca – alles is op loopafstand. Wil je er even tussenuit? De bushalte is nabij en uitvalswegen zijn binnen enkele minuten bereikbaar.
Kun je niet wachten om te verhuizen? Deze woning is op korte termijn te aanvaarden. Dus ben jij helemaal klaar voor een frisse start in een fijn huis, wacht dan vooral niet te lang met reageren. Wie weet sta jij binnenkort te genieten van je nieuwe thuis aan de Fivelingolaan 14 in Stadskanaal!
Kom sfeer proeven, maak vandaag nog een afspraak voor een bezichtiging en laat je verrassen door de ruimte, licht en het gemak van deze instapklare woning. Tot snel?
Indeling
Entree, royale hal met garderobe en meterkast , en kastruimte,( geheel vernieuwd in 2019), Doorzon woonkamer met haard en semi open keuken, keuken voorzien van modern keukenblok met inbouw apparatuur en Quooker en deur naar de achtertuin,
Eerste verdieping
overloop, 3 slaapkamers waarvan twee met vaste kast en één met deur naar balkon, grote inloopkast, badkamer ( leuk ingedeeld) met ruime inloopdouche 2e toilet wastafelmeubel en witgoedopstelling, vlizotrap naar de bergzolder.
Bijzonderheden
Geheel geïsoleerde woning met 11 zonnepanelen.
CV ketel van 2025!!
Bovenverdieping v.v. kunststof kozijnen met HR++ beglazing.
Elektrische vloerverwarming in de keuken het toilet en de badkamer.
Mooie centrale ligging in zeer rusutige straat.
Mooie nette zo goed als instap klare woning.
Erg ruime inrit .
Op korte termijn te aanvaarden!