Beschrijving
Zoek je een ruime, nette gezinswoning waar je zonder veel werk in kunt trekken? Stop maar met zoeken, want Boven Westerdiep 171 in Veendam tikt eigenlijk alle boxen aan! Of je nu als doorstromer toe bent aan de volgende stap, graag wilt verhuizen met het hele gezin of samen met je partner heerlijk rustig wilt wonen, deze vrijstaande woning is echt iets om enthousiast van te worden.
Het begint al goed: op een perceel van maar liefst 465 vierkante meter heb je hier plek zat voor al je woonwensen. Met een voor- en ruime achtertuin is genoeg ruimte voor het hele gezin of voor de tuinliefhebbers. Met een overkapping achterin is ook voldoende ruimte voor rust en te genieten van de ondergaande zon.
De ruime oprit zorgt er bovendien voor dat je nooit om parkeerplek verlegen zit; je kunt zonder problemen meerdere auto’s kwijt. En hadden ik de bijgebouwde garage al genoemd? Handig voor de oldtimer of fietsen, klusspullen, of wie weet wordt het je nieuwe hobbyruimte.
Kom binnen! Zodra je voet over de drempel zet, valt meteen de eigentijdse uitstraling op. Strakke kleuren, frisse muren, alles in een nette staat – hier hoef je niet eerst wekenlang te klussen of te schilderen voor je echt prettig kunt wonen. De serre aan de achterzijde is de kers op de taart: een heerlijke extra ruimte waar je het hele jaar door geniet van het uitzicht op de tuin. Van winter tot zomer, hier zit je altijd lekker licht en comfortabel.
Met drie ruime slaapkamers biedt dit huis genoeg ruimte aan gezinnen, maar is het ook praktisch voor oudere stellen die misschien nog een logeerkamer of een werkkamer wensen. De kamers zijn veelzijdig in te delen, dus of je nu behoefte hebt aan een babykamer, een thuiswerkplek of een mancave: het past!
En dan de locatie – vanaf hier ben je zo bij het centrum van Veendam, waar je alles vindt wat je dagelijks nodig hebt. Supermarkten, scholen, sportverenigingen, winkels en uitgaansgelegenheden zijn allemaal op korte afstand, net als openbaar vervoer en uitvalswegen. Hier woon je lekker rustig, maar heb je alle voorzieningen om de hoek.
Niet onbelangrijk: dit huis heeft ( nu nog) een energielabel C, dus je zit er straks comfortabel bij, zonder torenhoge energierekeningen. Wel zo prettig, zeker in de huidige tijd.
Dit is echt zo’n huis waar alles klopt als je op zoek bent naar comfort, ruimte en het gemak van wonen op een uitstekende locatie. Geen grote verbouwingen, geen gedoe; gewoon je spullen neerzetten en genieten maar. Benieuwd? Kom snel een keertje kijken, want voordat je het weet, is deze kans weg!
Bel of stuur gerust een berichtje voor een bezichtiging – wie weet mag je jezelf binnenkort de trotse bewoner noemen van Boven Westerdiep 171!**
Indeling
Zijentree, hal met garderobe, toilet en meterkast, U -vomige woonkamer met haard en semi open keuken, keuken voorzien van modern keukenblok incl allerlei inbouw apparatuur, aangebouwde serre, bijkeuken met witgod aansluiting en achterentree.
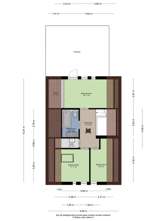
Eerste verdieping
overloop, 3 slaapkamers, badkamer met ligbad 2e toilet en wastafelmeubel.
Tuin
Netjes aangelegd met overkapping en schuurruimte achterin.
Bijzonderheden
Ligging nabij het centrum met alle voorzieningen.
Bijgebouwde garage.
Erg ruime inrit met ruimte voor meerdere auto's.
Goed onderhouden de woning is in 2025 nog geschilderd aan de buitenzijde.
Modern keukenblok en moderne kleurstelling binnenin.
Mooie serre aan de achterzijde van de woning.
In 2025 is er nog muur-en vloerisolatie aangebracht waardoor het energielabel zal zijn verbeterd.
14 zonnepanelen aanwezig.
Aanvaarding in overleg.
Plattegronden
182931007_1632871_boven_begane_grond_first_design_20260304_5fb88e.jpg
182931007_1632871_boven_eerste_verdiepi_first_design_20260304_f95240.jpg
182931007_1632871_boven_garage_zolder_first_design_20260304_552e58.jpg
182931007_1632871_boven_garage_first_design_20260304_446f8c.jpg
182931007_1632871_boven_zolder_first_design_20260304_388d24.jpg
182931007_1632871_boven_berging_first_design_20260304_dd74be.jpg
182931007_1632871_boven_begane_grond_tu_first_design_20260304_94fa7e.jpg